Skip to content
logo red
"Ehrlich zuhören, verstehen und genial umsetzen"
  • +43 664 889 377 66
  • info@horst-steiner.com
  • Wohnen & Haus
  • Bürogestaltung
  • Projekte
  • Vorgehen
  • Was sagen Kunden
  • Über uns
  • Praxisbeispiele
  • Kontakt
  • Lass uns reden
logo red
Lass uns reden
  • Wohnen & Haus
  • Bürogestaltung
  • Projekte
  • Vorgehen
  • Was sagen Kunden
  • Über uns
  • Praxisbeispiele
  • Kontakt

Ungewöhnlich, aber richtig: Innenraumplanung starten, bevor man baut!

Während normalerweise zuerst das Haus geplant und gebaut wird, bevor man die Gestaltung der Innenräume plant, hat es sich für unsere Kunden ausnahmslos bewährt, zuerst mit uns über ihre Wünsche für die Innenraumgestaltung zu sprechen, dafür eine detaillierte Planung zu erhalten, und danach die gesamte Bauplanung in Angriff zu nehmen.

Warum von innen nach außen planen?

Das benötigte Interior Design entscheidet letztlich darüber, wie der Anbau, Zubau oder Neubau ihrer Träume nach außen hin aussehen wird. Ein Bauplaner plant das Aussehen des Hauses, den Grundriss, mit Wänden, Decken und Böden. Dabei legt er die Form und Beschaffenheit von Räumen fest. Fenster, Türen, Installationen und Elektrik wie z. B. Steckdosen werden von ihm so im Bauplan angegeben, wie es in der Regel üblich ist.

Aber – passt das zu Ihrem Lebensstil? Ist nämlich erstmal fertig gebaut, sind Nachbesserungen im Innenraum oft nur mit Kompromissen und Extrakosten möglich. Lesen Sie hier, wie Sie sich solche Unannehmlichkeiten ersparen:

6 Punkte, die man vor Hausbau oder Umbau berücksichtigen sollte

Um dem individuellen Leben der Bewohner bestmöglich gerecht zu werden, ist es also entscheidend, die Raumplanung bereits vor einem Hausbau, An- oder Umbau sorgfältig zu durchdenken. Hier sind einige Beispiele von Aspekten, die bei der Interieurplanung im Voraus berücksichtigt werden sollten:

  1. Angenehme Lichtverhältnisse
    Die Positionierung von Fenstern und Türen: Die natürliche Belichtung der Räume spielt häufig eine große Rolle für das eigene Wohlbefinden in seinen vier Wänden. Durch eine rechtzeitige Planung vor dem Bau, können Fenster und Türen, sowohl außen als auch innen, nach individuellen Bedürfnissen geplant und verbaut werden. Beleuchtungskörper schaffen zusätzlich eine kontrollierbare Wohlfühlatmosphäre, deren Position am besten schon im Voraus geplant werden, vor allem, wenn es sich um Deckeneinbauten handelt.
  2. Optimale Raumaufteilung
    Eine durchdachte Aufteilung der Räume verbessert Funktionalität und Komfort des Wohnraums erheblich. Dazu gehört auch die Optimierung der Gehwege zwischen den verschiedenen Wohnbereichen, um die Effizienz im Alltag zu steigern. Eine durchdachte Raumplanung, bevor Wände gesetzt werden, ermöglicht es, diese Wege optimal zu gestalten und somit das tägliche Leben zu erleichtern.
  3. Schallübertragung – Akustiklösungen
    Die Raumakustik hat einen unsichtbaren Einfluss auf die häusliche Wohlfühlatmosphäre und erfordert unbedingt gezielte Gestaltungsmaßnahmen an Wänden und Decke, die im Vorhinein besprochen und eingeplant werden sollten, um spätere unangenehme Geräuschübertragungen innerhalb oder außerhalb des Hauses zu verhindern.
  4. Strom- und Wasserversorgung
    Im Voraus geplante Elektro- und Sanitärinstallationen können späteren Umbauten und Kosten deutlich entgegenwirken. Als Beispiel ist hier der Komfort im Badezimmer genannt: Die Integration von zusätzlichen Elementen wie einem Bidet oder einem zweiten Waschbecken kann den Wohlfühlfaktor im Badezimmer erheblich steigern und sollte daher frühzeitig in die Planung einbezogen werden.
  5. Optimierte Stauräume
    Extra Stauräume, sei es in Form von Einbauschränken, Regalen oder anderen Lösungen, tragen dazu bei, dass der Wohnraum aufgeräumt und funktional bleibt. Hierzu kann es notwendig sein, einige Wände vor- oder zurückzusetzen, um den entsprechenden Stauraum zu gewinnen. Die Planung dieser Stauräume im Voraus macht Spaß und ist eine wirklich gute Idee. Dabei kann man auch wertvolle Erinnerungsstücke, besondere Möbelstücke oder Sportgeräte, mit einbeziehen. Das Einbinden besonderer Möbel ist ein wichtiger Faktor in der Innenarchitektur.
  6. Barrierefreiheit
    Schon bei der Raumplanung können Maßnahmen zur Barrierefreiheit umgesetzt werden, um die Zugänglichkeit für alle Bewohner zu gewährleisten.

Die Berücksichtigung all dieser Details in der Raumplanung vor dem Bau oder Umbau eines Hauses kann dazu beitragen, dass individuelle Bedürfnisse und Anforderungen bereits im Vorfeld erfüllt werden, ohne dass nachträgliche Änderungen mit zusätzlichem Aufwand und Kosten verbunden sind.

Achtung Fehlplanung: Diese Probleme können Sie vermeiden

Hier sind drei Beispiele aus unserer Praxis, die verdeutlichen, wie sich eine solche Fehlplanung auswirken kann:

Beispiel 1: Badezimmer falsch positioniert

Nach Abschluss der Bauarbeiten stellten die Besitzer fest, dass sie ihr Bad eigentlich lieber in der Nähe des Schlafzimmers haben wollten. Die entsprechenden Wasserinstallationen im Nachgang umzubauen ist immer eine aufwendige Angelegenheit und hätte vermieden werden können, wenn wir die Innenräume vorrangig gestaltet hätten und danach das Haus quasi drumherum gebaut worden wäre. Natürlich im möglichen Rahmen. Es geht hier also um die im Voraus geplante, korrekte Reihenfolge der Baumaßnahmen.

 

Beispiel 2: Lebensgewohnheiten des Kunden nicht berücksichtigt

Der Hausbesitzer erzählte uns im Vorgespräch zur Innenraumgestaltung seines Neubaus über seine Vorlieben und liebgewonnenen Lebensgewohnheiten. Dabei stellte sich heraus, dass dieser gerne seine neue Terrasse zum Grillen nutzen wollte. Die Verbindung vom Haus zur Terrasse wurde – wie es üblich ist – über das Wohnzimmer realisiert. Grillgut, Geschirr und alles, was dazu gehört, musste also von der Küche durch das Wohnzimmer nach draußen und zurückgetragen werden.

Bei einer frühzeitigen Innenraumplanung wären folgende Ideen umsetzbar gewesen:

  1. Anstelle eines Küchenfensters hätte eine Tür von der Küche zur Terrasse eingebaut werden können. Dies hätte die Wege verkürzt und die Vorlieben des Kunden optimal unterstützt, was zu einem schnelleren und saubereren Grillvergnügen im Freien führen würde.
  2. Beim Bau des Erdgeschosses hätte man auch einen direkten Zugang von der Terrasse zum WC einplanen können. Dies hätte es dem Kunden und seinen Gästen ermöglicht, schnell vom Außenbereich ins Innere zu gelangen, ohne durch das Wohnzimmer oder die Küche gehen zu müssen – besonders praktisch, wenn ein Pool im Garten vorhanden ist. Zudem hätte dies die Möglichkeit geboten, den Toilettenraum von innen abzuschließen, um unerwünschten Zugang zum Hausinneren zu verhindern. Eine solche Planung hätte wahrscheinlich auch die Position der WC-Installation beeinflusst, was im Voraus berücksichtigt werden könnte.

Wintergarten-Anbau in Grossschönau, aussen

 

Beispiel 3: Wände und Innentüren falsch gesetzt

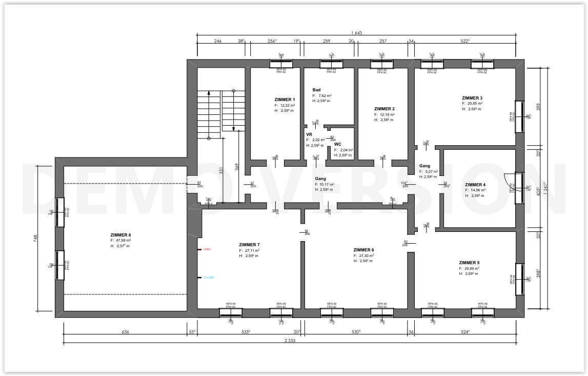
Die Eltern des Kunden hatten wohlmeinend vor 20+ Jahren das Dachgeschoss ihres Hauses für den Sohn ausgebaut. Es gab, wie es damals üblich war, einen langen Flur, von dem viele kleine Zimmer abgingen und ein für heutige Verhältnisse kleines Bad. Als der Sohn zwanzig Jahre später aus der elterlichen Wohnung ausziehen und die obere Wohnung übernehmen wollte, stieß er auf massive Platzprobleme. Die ausgebaute Dachwohnung war zwar mit ihren 200 m² riesig, wirkte aber durch die vielen Wände beengend und relativ dunkel, was dem Sohn vom Stil her nicht mehr gefiel.

Plan Wohnung Bauernhaus vor Umbau Grundriss – Vorher

Unsere Aufgabe bestand darin, das gesamte Obergeschoss von innen neu zu planen und einzurichten, was den Kunden rund € 150.000 kostete. Solche Zahlen legen nahe, Räume besser nicht Jahrzehnte im Voraus komplett auszubauen, sondern damit lieber zu warten, bis der Sprössling so weit ist, seinen neuen Lebensraum selber zu definieren. Bei diesem Umbau wurden viele Wände, Bodenbeläge und Installationen entfernt bzw. versetzt, um für den mittlerweile erwachsenen Sohn ein zu ihm passendes Ambiente zu schaffen. Jetzt sind die Räume sehr hell, offen und trotzdem gemütlich. Das Bad ist groß und geräumig und sowohl vom Schlafzimmer, dem Flur und einem begehbaren Ankleidezimmer zugänglich. (Siehe Sehenswert: Wohnung im Bauernhof, wunderschöner Komplettumbau auf 200 qm)

 

Der Wohnraum wird durch die Anforderungen seiner Bewohner definiert

Die Wichtigkeit, Innenraumgestaltung bereits in der Planungsphase zu berücksichtigen, kann deshalb nicht überbetont werden. Ein Verständnis für die Bedeutung und den Wert dieser Vorgehensweise spart erfahrungsgemäß Kosten und Nerven.

Indem die Innenarchitektur den Ausgangspunkt bildet, wird sichergestellt, dass die äußeren Mauern nicht nur Räume umschließen, sondern wahre Lebensräume schaffen. Jeder Raum wird mit Bedacht geplant und gestaltet, um die persönlichen Vorstellungen und Bedürfnisse der Bewohner optimal zu erfüllen.

Unser Herz schlägt für vorausschauende Bauplanung

Durch unsere einzigartige Herangehensweise werden Wohnträume tatsächlich Wirklichkeit – von innen nach außen – wobei die feine Balance zwischen Funktionalität und Ästhetik stets im Fokus steht. Jedes Projekt wird individuell betreut und umgesetzt. Das Team arbeitet eng mit den Kunden zusammen, um deren Visionen in jeder Phase des Projekts zu realisieren.

Wir sind Profis in der Planung von Innenräumen und gestalten Ihren Ausbau wunschgerecht, und zwar alles aus einer Hand. Dies hilft, die Kostenstruktur klarer festlegen zu können und auch die Professionisten perfekt auf die geplanten Arbeiten abzustimmen. Die gesamte Umsetzung macht mehr Spaß und verursacht keine Kopfschmerzen! Das freut den Kunden und das Team!

Mit dieser innovativen Methode setzt unser Unternehmen neue Maßstäbe. Wir schaffen Wohnräume, die nicht nur schön anzusehen sind, sondern auch das wahre Leben widerspiegeln. Jedes Detail wird sorgfältig geplant, um eine harmonische Verbindung zwischen der Innen- und Außenwelt zu schaffen und den Bewohnern ein zu ihnen passendes, gemütliches Zuhause zu bieten.

Wo die Innenarchitektur zum Leben erweckt wird, da schlägt auch unser Herz: von innen nach außen.

Ihr Horst Steiner
Tel. +43 724 3220 51 – 55
info@horst-steiner.com

Horst Steiner Innenarchitektur bietet den kompletten Service vom Konzept bis zur Fertigstellung.

Um dem individuellen Leben der Bewohner bestmöglich gerecht zu werden, ist es entscheidend, die Raumplanung bereits vor einem Hausbau oder Umbau sorgfältig zu durchdenken. Denn die Innenarchitektur von innen nach außen ist mehr als nur ein Konzept. In den Innenräumen entfaltet sich das wahre Leben, hier sollen die Menschen ihre Wohnträume bis ins kleinste Detail verwirklicht sehen. Kein nachträgliches „Wir bräuchten eigentlich mehr Platz, um all unsere Sachen unterzubringen!“ Stehen erst einmal die Wände im Haus, lässt sich nur mit Aufwand und Kosten ein zusätzliches Ankleidezimmer oder ein Schrank in die Wand einbauen. Viele Dinge, die man sich vorher überlegen sollte, machen das Leben in den eigenen vier Wänden im Nachhinein einfacher und angenehmer.

Bei der Planung für Neubau, Umbau oder Zubau steht also immer die Innenraumgestaltung und die individuellen Wünsche des Kunden im Mittelpunkt. Eine Philosophie, die bei Horst Steiner Innenarchitektur gelebt wird. Erfahren Sie hier, welche 6 Punkte man vor dem Hausbau oder Umbau unbedingt berücksichtigen sollte!

Beitragsnavigation

Weitere Tipps

Stilvolle Wohnraum-Transformation: Tradition trifft auf japanische Moderne

Neues Jahr, neue Räume: Warum Januar und Februar die besten Monate für Ihre Renovierungsplanung sind

Neue Möbel und doch kein Zuhause-Gefühl?

Geniale Neugestaltung statt Umzug: Wie aus einem Familienhaus ein maßgeschneidertes Luxus-Domizil wurde

Gelungene Wohnraum-Neugestaltung mit Galerie und intelligenter Akustik

Unsere Kunden erzählen: So verändert ein durchdachter Umbau das Leben

Zur Übersicht

Ihr nächster Schritt ist einfach:

Telefonieren wir und wenn gewünscht, treffen wir uns Vorort - unverbindlich.

Wir telefonieren einfach am besten zuerst. Wenn gewünscht, können wir uns Vorort zusammensetzen und besprechen, was Ihnen vorschwebt und welche Lösungen sich anbieten könnten. Sie müssen nichts vorbereiten. Profitieren Sie von unserer langjährigen Erfahrung.

Gerne helfe ich Ihnen einen wesentlichen Schritt weiter.

Ihr Horst Steiner

Ich hätte gerne einen Rückruf:

Bitte ausfüllen und auf „Rückruf anfordern“ klicken.
Wir melden uns.

Innenarchitekt Leistungen

Bekommen Sie regelmässig unsere neuesten Tipps

Und falls Sie dazu noch eine umfassende Schritt-für-Schritt-Anleitung für ein sorgenfreies Neugestalten und Renovieren suchen, empfehle ich Ihnen mein Buch “Heller, schöner und mehr Platz!”.
Datenschutzerklärung*
 
Möchten Sie eine unverbindliche Beratung?
Fragen Sie hier an und wir rufen Sie gerne zurück
Kontaktieren Sie uns
logo red

Öffnungszeiten

Termin nach Vereinbarung

Adresse

  • Paul-Hahn-Straße 30
  • 4614 Marchtrenk

Kontakt

  • +43 664 889 377 66
  • info@horst-steiner.com

Teilen

Facebook-f Youtube Pinterest Instagram Blog Linkedin
© 2026 - Horst Steiner Innenarchitektur GmbH | Powered by Onlineplaner
  • Datenschutzerklärung
  • Impressum
  • Kontakt
  • Datenschutzerklärung
  • Impressum
  • Kontakt
  • Datenschutzerklärung
  • Impressum
  • Kontakt
  • Datenschutzerklärung
  • Impressum
  • Kontakt

Ideen- und Kostenschätzung

* Pflichtfeld

Schritt 1 of 8

12%
This field is for validation purposes and should be left unchanged.

Welchen Bereich möchten Sie gerne verändern?

Objekttyp

Um wie viel Quadratmeter handelt es sich hierbei ungefähr?

Wie umfangreich soll die Veränderung sein?

Art der Veränderung

Was würde Ihnen am meisten helfen?

gewünschte Kompetenz*
Wann soll es fertig sein?

Möchten Sie noch etwas hinzufügen?

Wo soll der Umbau stattfinden

This field is hidden when viewing the form
This field is hidden when viewing the form
This field is hidden when viewing the form
Name*
DSGVO