Skip to content
logo red
"Ehrlich zuhören, verstehen und genial umsetzen"
  • +43 664 155 68 45
  • info@horst-steiner.com
  • Wohnen & Haus
  • Bürogestaltung
  • Projekte
  • Vorgehen
  • Was sagen Kunden
  • Über uns
  • Praxisbeispiele
  • Kontakt
  • Lass uns reden
logo red
Lass uns reden
  • Wohnen & Haus
  • Bürogestaltung
  • Projekte
  • Vorgehen
  • Was sagen Kunden
  • Über uns
  • Praxisbeispiele
  • Kontakt

Haus lieber selber bauen oder fertig kaufen?

In vielen schlummert der Wunsch nach einem eigenen Haus. Die Gründe dafür liegen auf der Hand. Nirgendwo sonst kann man seine eigenen Vorstellungen zum individuellen Wohntraum so gut realisieren als hier. Doch ist es der Aufwand wirklich wert? Oder sollte man sich einfach nach einem bestehenden Haus umschauen und ein bereits fertiges kaufen?

Beide Varianten haben sicherlich seine Berechtigung. Die Entscheidung darüber ein Haus zu kaufen oder selber zu bauen ist hauptsächlich von folgenden drei Faktoren abhängig: Ort, Zeit und Budget.

Ort

Steht in der gewünschten Region oder im gewünschten Ort, in dem man sich längerfristig niederlassen möchte, überhaupt ein Grund zum Verkauf frei beziehungsweise ist es realistisch, dass in absehbarer Zeit etwas verfügbar wird? Wenn nicht und auch kein anderer Ort in Frage kommt, haben Sie oben genannte Frage schon für sich beantwortet. (Das Szenario können Sie natürlich im Hinblick auf einen Hauskauf genau gleich durchspielen.)

Zeit

Ein Hausneubau ist immer eine zeitliche und auch mentale Belastung für die Bauherren. Deshalb spielt der zeitliche Aspekt auch eine wesentliche Rolle. Dabei unterscheidet sich natürlich ein Fertigbauhaus zur Massivbauweise. Ersteres kann, wenn es wirklich schnell gehen soll, in ungefähr einem halben Jahr vom Spatenstich bis zum Einzug fertig sein. Ein Massivhaus benötigt als absolutes Minimum ein dreiviertel. Vernachlässigt wird dabei allerdings meist die Planungsphase. Erst kürzlich habe ich in einem Artikel folgendes gelesen:

„Funktionelle Dinge wie optimale Laufwege im Haus oder die zukünftige Möblierung erfordern ein gutes Vorstellungsvermögen. Deswegen ist nahezu jeder Neubau mit kleinen Funktionseinschränkungen verbunden, die während der Planung nicht bis zu Ende gedacht worden waren.“

Und genau hier kommen viele Bauherren immer wieder in Schwierigkeiten weil sie während der Bauphase auf etwas stoßen, dass nicht so funktioniert, wie sie es sich eigentlich gewünscht hätten. Damit eine Planung wirklich zu Ende gedacht wird bedarf es für ein Haus mindestens 4 Monate Vorlaufzeit in der man sich intensiv damit auseinander setzt. Es sollten alle gewünschten Funktionen im Innenbereich zu 100 % feststehen bevor man alles dem Baumeister übergibt und die Bauphase startet. Denn die Frage nach Wasser und Elektroinstallationen kommt sehr schnell und zu diesem Zeitpunkt muss bereits feststehen, wo welche Anschlüsse, Steckdosen, etc. sein müssen, damit die Raumauf- und einteilung tatsächlich den gewünschten Funktionen entspricht. Wenn man also eine ausreichende Planungsphase miteinberechnet umfasst der Zeitbedarf alles in allem bei einem Fertigbauhaus mindestens 1 Jahr und bei Massivbauweise gemäß unseren Erfahrungen auf jeden Fall 1 ½ Jahre.

Will man sich diesen zeitlichen Aufwand ersparen ist ein bestehendes Haus zu kaufen natürlich die bessere Option. Im Hinblick auf die eigenen Bedürfnisse und Wünsche an Funktionen muss einem nur bewusst sein, dass hier immer Abstriche als Kompromiss gemacht werden müssen.

Budget

Ob Hausneubau oder der Kauf eines Hauses, es handelt sich für die meisten um eine der größeren Investitionen im Leben. Welche Variante günstiger oder teurer ist ist schwer zu sagen. Der einzige wesentliche Unterschied ist, dass bei einem Neubau die Kosten gleich zu Beginn sicherlich höher sind, die sofort auf einen zukommen. Wenn man sich ein bereits bestehendes, womöglich auch etwas älteres Haus kauft und Schritt für Schritt renoviert, kann man sich die Kosten besser aufteilen und erst dann weiter renovieren, wenn man wieder genug Budget dafür zur Verfügung hat. Definitiv beeinflussbar sind die Kosten bei beiden Varianten durch die eingebrachte Eigenleistung. Je mehr Eigenleistung man einbringen kann oder will, desto geringer auch die Kosten.

Ein älteres Haus zu kaufen und zu sanieren kann insgesamt oft teurer sein als selbst zu bauen. Das kommt natürlich immer auf das Ausmaß der benötigten oder gewünschten Umbauarbeiten an. Was wir allerdings durch unsere Kunden in den letzten Jahren oft mitbekommen haben ist, wenn ein bestehendes Haus gekauft wird, wird früher oder später auf jeden Fall umgebaut. Manchmal in kleinerem, oft aber auch in größerem Umfang. Und das auch bei eigentlich neueren Häusern, die auf den ersten Blick den Anschein machten, dass alle gewünschten Funktionen gegeben sind. Tatsächlich aber stellten viele nach einiger Zeit immer wieder fest, dass die eigenen Wünsche und Vorstellungen doch so individuell sind und es zumindest einen kleineren Umbau benötigt, damit man seinen eigenen Wohntraum erfüllt bekommt. So werden oft ‚perfekt’ geplante Häuser doch nochmal umgekrempelt weil der eigene Bedarf einfach sehr speziell und immer individuell ist.

Passend zum Thema haben wir hier auch ein Beispiel, in dem unsere Kunden ein relativ junges, bestehendes Haus in toller Lage gekauft und im Anschluss auf Ihren eigenen Bedarf abgestimmt und umgebaut haben.

Der Wunsch unserer Kunden war zum einen den Eingangsbereich sowie den Flur und Treppenabgang offener und leichter zu gestalten. Zum anderen sollte aus den vorhandenen Räumlichkeiten – Wasch- und Schrankraum, Arbeitsraum und kleiner Zwischengang – ein gemütliches und funktionelles Schlafzimmer mit genügend Stauraum verbunden mit einem Badezimmer und integriertem Waschraum werden. Das bereits vorhandene Badezimmer sollte zu einem Kinderbadezimmer umfunktioniert werden.

In diesem Sinne sprechen Bilder sicher mehr als tausend Worte…

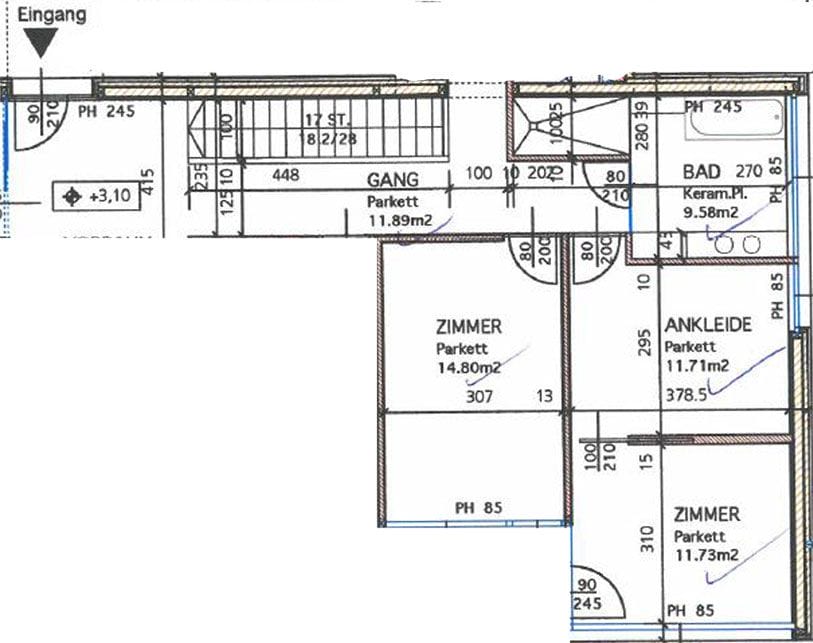
Die Grundrisspläne zeigen die alte und neue Raumaufteilung im Vergleich:

Haus bauen kaufen Lechner vorher Haus bauen kaufen Lechner nachher

Der Eingangsbereich wurde mittels einer Glaswand und Glasschiebetür offener und leichter gestaltet. Auch beim Treppenabgang wurde die gemauerte Wand durch eine Glaswand ersetzt, um mehr Offenheit zu bekommen. Die vielen Stauräume im Flur wurden mit helleren Fronten passend zur Wand versehen um eine gleichmäßigere und dadurch leichtere Optik zu erzielen.

Innenarchitektur Haag Vorher Eingang Innenarchitektur Haag Vorher Vorraum

Die restlichen Räumlichkeiten wurden neu definiert. Was vorher lauter einzelne Räume, durch einen kleinen Flur verbunden, waren, wurde durch Schiebetürlösungen und offenerer Raumgestaltung zu einer kleinen Einheit. Der funktionelle Stauraum wurde mit einer kleinen Waschküche verbunden und das Badezimmer wie auch das Schlafzimmer haben nun jeweils einen Zugang zur großen Terrasse.

Beitragsnavigation

Weitere Tipps

Geniale Neugestaltung statt Umzug: Wie aus einem Familienhaus ein maßgeschneidertes Luxus-Domizil wurde

Gelungene Wohnraum-Neugestaltung mit Galerie und intelligenter Akustik

Unsere Kunden erzählen: So verändert ein durchdachter Umbau das Leben

Umbau & Zubau – mehr Raum zum Leben

Eine moderne Bürowelt für AluKönigStahl Wien: Besseres Teamwork, Mitarbeiter begeistert!

Amerikanischer Landhaus-Stil mit Blick ins schöne Salzkammergut!

Zur Übersicht

Ihr nächster Schritt ist einfach:

Telefonieren wir und wenn gewünscht, treffen wir uns Vorort - unverbindlich.

Wir telefonieren einfach am besten zuerst. Wenn gewünscht, können wir uns Vorort zusammensetzen und besprechen, was Ihnen vorschwebt und welche Lösungen sich anbieten könnten. Sie müssen nichts vorbereiten. Profitieren Sie von unserer langjährigen Erfahrung.

Gerne helfe ich Ihnen einen wesentlichen Schritt weiter.

Ihr Horst Steiner

Ich hätte gerne einen Rückruf:

Bitte ausfüllen und auf „Rückruf anfordern“ klicken.
Wir melden uns.

Innenarchitekt Leistungen

Bekommen Sie regelmässig unsere neuesten Tipps

Und falls Sie dazu noch eine umfassende Schritt-für-Schritt-Anleitung für ein sorgenfreies Neugestalten und Renovieren suchen, empfehle ich Ihnen mein Buch “Heller, schöner und mehr Platz!”.
Datenschutzerklärung*
 
Möchten Sie eine unverbindliche Beratung?
Fragen Sie hier an und wir rufen Sie gerne zurück
Kontaktieren Sie uns
logo red

Öffnungszeiten

Termin nach Vereinbarung

Adresse

  • Paul-Hahn-Straße 30
  • 4614 Marchtrenk

Kontakt

  • +43 664 155 68 45
  • info@horst-steiner.com

Teilen

Facebook-f Youtube Pinterest Instagram Blog Linkedin
© 2025 - Horst Steiner Innenarchitektur GmbH | Powered by Onlineplaner
  • Datenschutzerklärung
  • Impressum
  • Kontakt
  • Datenschutzerklärung
  • Impressum
  • Kontakt
  • Datenschutzerklärung
  • Impressum
  • Kontakt
  • Datenschutzerklärung
  • Impressum
  • Kontakt

Ideen- und Kostenschätzung